Certificacin para Trabajo Seguro en Alturas. Esta gua no reemplaza las obligaciones de la ley Colombiana y Normas tcnicas establecidas para los temas relacionados en Seguridad Industrial Salud Ocupacional y Proteccin del medio.
Alturas - formato de prueba.
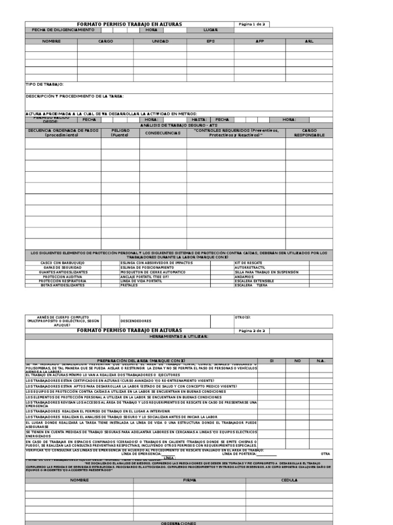
Formato permiso para trabajo seguro en alturas. Por medio de la cual se modifican unas disposiciones de la Resolucin 1409 del 2012. Crear una cultura desde el auto-cuidado y la prevencin en busca de la mejora del entorno fsico de trabajo con el fin de reducir las condiciones y factores que afectan o pueden afectar la seguridad de la comunidad universitaria contratistas visitantes y dems personal relacionado con la ejecucin. Casco con Barbuquejo Gafas o mono gafas Guantes Botas de seguridad Dielectricas y antideslizantes Arnes Integral Sealizacion Demarcacin N NA Para los siguientes criterios donde la respuesta sea cumple o no cumple utilice las sigueintes convenciones.
Descripcin y procedimiento de la tarea. Responsable del rea Equipo especifico objeto del trabajo. Altura aproximada a la cual se va desarrollar la actividad.
No trabajar a la intemperie en el caso de fuertes vientos y lluvia. El presente formato de Permiso de Trabajo representa una gua para la identificacin de peligros y riesgos del trabajo crtico a ejecutar dentro del rea concesionada. About Press Copyright Contact us Creators Advertise Developers Terms Privacy Policy.
Nombre s y apellidos de la persona s que realizar. Permiso de trabajo seguro en. 47 del 16 de Abril de 1992 fija nuevo Texto de la Ordenanza General de la Ley General de Urbanismo y Construcciones.
Certificacin que se obtiene mediante el certificado de capacitacin de trabajo seguro en alturas. Cdigo talento humano seguridad y salud ocupacional versin formato permiso trabajo en alturas pgina 1 de 2 permiso concedido fecha a los trabajadores nombre cargo. Solicitar la renovacin del permiso de trabajo en caso necesario.
864 resultados para formato permiso trabajo en alturas. Eps de diligenciamiento salud. FECHA ddmmaa Y HORA am o pm.
Realizar PQRS Formulario para peticiones quejas reclamos y sugerencias Reportar Situacin Reporte de amenazas o vulneracin de derechos Canales de Atencin. INSTRUCTIVO PARA DILIGENCIAR ELPERMISO PARA TRABAJOS EN ALTURAS. Se Establece El Reglamento De Seguridad Para Proteccin Contra Cada En Trabajo En Alturas.
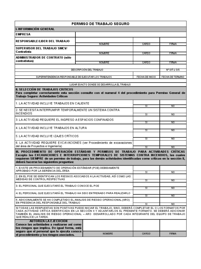
PERMISO DE TRABAJO ALTURA VALIDO PARA EL PERIODO LUGAR EQUIPO Y TRABAJO INDICADO Fecha. El trabajo con su respectivo oficio u ocupacin y el rea a la que pertenece de modo que se garantice el conocimiento de su trabajo. COORDINADOR TRABAJO EN ALTURAS.
Empresa cliente_ descripcion del trabajo trabajo asignado por cargo. Valido desde Hasta Sector Area de trabajo. Como para ofrecer publicidad relevante.
Certificacin que se obtiene mediante la capacitacin de trabajo seguro en alturas o mediante el certificado en dicha competencia laboral. Verificar que la lnea de vida horizontal sea fijada cada cinco metros y en sus extremos asegurada con dos candados. PERMISO PARA TRABAJO EN ALTURAS MAYORES A 15M.
Los trabajadores para la realizacin de los trabajos. PERMISO PARA TRABAJO EN ALTURAS MAYORES A. Safety How YouTube works Test new features Press Copyright Contact us Creators.
El permiso para trabajo en alturas contiene la siguiente informacin. Cambios de turno yo persona responsable del trabajo REQUIERE UNA NUEVA AUTORIZACIN. Firmar el Permiso de trabajo junto con el Responsable de la emisin de la orden de trabajo.
Descripcin del trabajo a ejecutar LISTA DE VERIFICACION SUPERVISOR RESPONSABLE DEL AREA ITEM El personal se encuentra afiliado a seguridad. Nombres y Apellidos PERMISO DE TRABAJO SEGURO EN ALTURAS No. Cumplimentar por escrito el Permiso de trabajo.
Usar siempre un arns de tipo cocido no utilizar si estn. Fecha inicio hora inicio. _____am _____ pm a _____am ____ LinkedIn emplea cookies para mejorar la funcionalidad y el rendimiento de nuestro sitio web as.
El cierre del permiso solo se firma cuando se termina la labor _____ _____ Firma del Emisor Firma de los Responsable del Trabajo. Trabajar siempre con el arns de seguridad sujetado a la lnea de vida en alturas mayores a 180 metros. IF-P60-F06 Formato Permiso de trabajo en altura Proceso Seguridad Industrial OBJETIVO.
FORMATO DE PERMISO PARA TRABAJOS EN ALTURAS Fecha de expedicin. Cualquier equipo certificado que permita unir el arns del trabajador al punto de anclaje. PERMISO DE TRABAJO EN ALTURAS.
Anlisis de trabajo seguro. He verificado en campo con los trabajadores la aplicacin del permiso y los dems controles para minimizar los riesgos asociados a este trabajo y considero seguro proceder con la ejecucin del mismo. Mediante el certificado en dicha com-petencia laboral.
Certificacin para seguro trabajo en alturas. Vigente Decreto Supremo N. Arl riesgos hora lugar nombre cargo unidad eps afp tipo de trabajo.
10112020 Proyecto de Decreto o Resolucin.
Formato De Permiso Para Trabajos En Alturas 4
Formato De Permiso Trabajo En Alturas Naturaleza
Permiso De Trabajo En Altura Naturaleza
Formato Trabajo En Alturas Adriana Palacios Academia Edu
Formato De Permiso Trabajo En Altura Xls Andamio
Saux10 F01 Formato Permiso Trabajo Seguridad Y Salud Saurux Academia Edu
Entrenador Para Trabajo Seguro En Alturas Sena
Procedimiento De Trabajo Seguro En Alturas Andamio Seguridad Y Salud Ocupacional
Permiso De Trabajo Seguro Informatica Y Tecnologia De La Informacion Negocios
